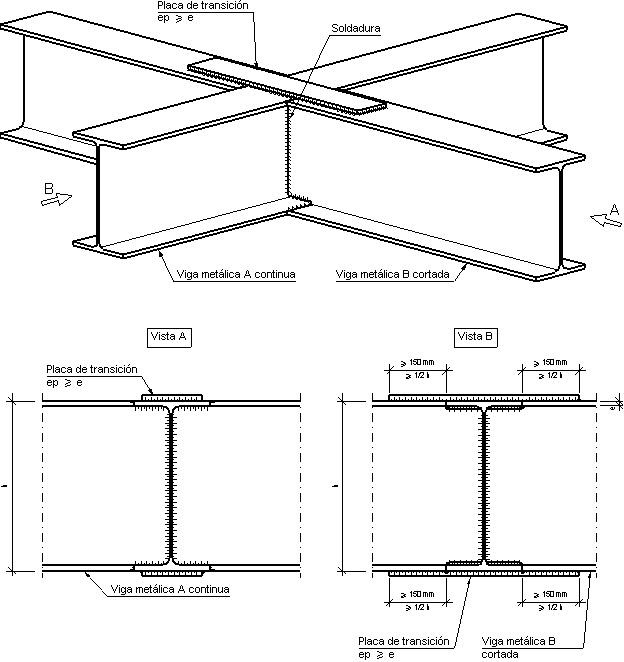
Unión Viga - Viga
Apeo de vigas de igual inercia mediante cordones de soldadura.
Se ha reforzado el encuentro con una platabanda.
El objetivo de dicha platabanda es el de dar continuidad a la viga de dirección A.

Unión Viga / Viga
Apeo de vigas de diferente inercia mediante cordones de soldadura.
Se ha reforzado el encuentro con un perfil en ángulo para garantizar el apoyo de la viga de menor sección.

Publicar un comentario Blogger Facebook